Bezichtiging plannen

Vul het formulier in om een bezichtiging te plannen

"*" geeft vereiste velden aan

Eerste optie

Tweede optie

Dit veld is bedoeld voor validatiedoeleinden en moet niet worden gewijzigd.

Vildersveenweg 8

7443 RK Nijverdal
  • Bouwjaar 1916
  • Energielabel C
  • 251 mยฒ
  • 5 kamers

Hidde zegt

Deze historische woonboerderij die er al ruim eerder stond dan omringende woningen, biedt een bijzondere combinatie van nostalgie met hedendaags wooncomfort! Sfeervol wonen in een niet-alledaags huis, dat is hรญer mogelijk!

Omschrijving

Nostalgisch en karakteristiek wonen op loopafstand van voorzieningen? Het kan in deze geheel gerestaureerde VRIJSTAANDE WOONBOERDERIJ met aaneengesloten multifunctioneel bijgebouw welke onder andere een dubbele garage, hobbyruimte en grote zolder behelst. Naast dat de woning volop ruimte biedt voor gezinnen, hobby’s en bijvoorbeeld thuiswerken, kan er ook levensloopbestendig gewoond worden door aanwezigheid van slaapkamer(s) en badkamer op de begane grond. Het erf biedt naast een ruime oprit met carport en ruime parkeerplek een zonnige tuin waarop zich een Douglas-houten terrasoverkapping en een tuinprieeltje bevinden.

Indeling:
Begane grond: Hal/entree met trapopgang, wandtoilet met fontein, comfortabel thuiskantoor, gezellige woonkamer met schouw en kenmerkend balkenplafond, halfopen keuken met aansluitend eet-/tuinkamer v.v. tuindeuren, hal, slaapkamer (1) met inloopkast, luxe badkamer met instap regen-/handdouche, dubbele wastafelmeubel en wandtoilet, slaapkamer (2), bijkeuken, achterhal met doorloop naar bijgebouw v.v. dubbele deur aan voorzijde, achterdeur naar halfopen gereedschapsschuur en trapopgang naar separate bergzolder v.v. buitenluik.

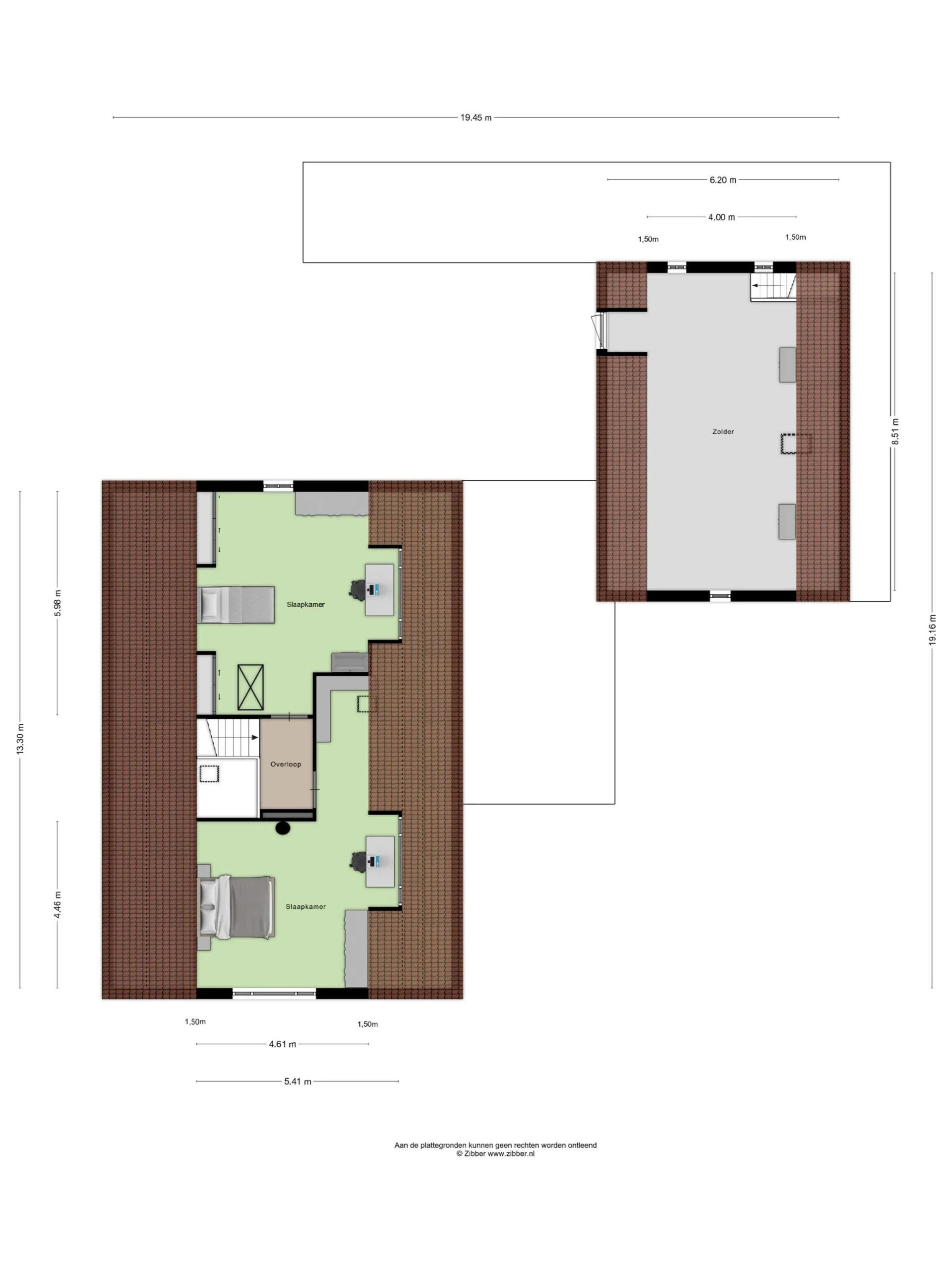
1e verdieping: Overloop in vide, grote slaapkamer (3) met dakkapel en kastruimte, grote slaapkamer (4) met dakkapel en kastruimte.

2e verdieping: Vlizotrap naar berging.

Bijzonderheden:
โ€ข Oorspronkelijk bouwjaar 1916;
โ€ข Woonoppervlakte 251 mยฒ, inhoud 1.231 mยณ;
โ€ข Perceeloppervlakte 755mยฒ;
โ€ข Geheel in stijl gerestaureerd;
โ€ข Gedeeltelijk v.v. vloerverwarming;
โ€ข Doelmatig geรฏsoleerd, dubbel glas rondom (slaapkamers 2024), dakisolatie en gedeeltelijk muurisolatie (voorzetwanden);
โ€ข Energielabel C, doch na vaststellen label meer isolaties en besparingsvoorzieningen toegepast;
โ€ข Verwarming/koeling via C.V.-ketel en meerdere airco’s (geplaatst in 2023);
โ€ข Bijzonder lage maandlasten! Jaarverbruik elektra circa 3.500 kWh (teruglevering circa 4.100 kWh), gas circa 160 mยณ;
โ€ข Grondwaterbron/-put en beregeningsinstallatie;
โ€ข Schouw met houtkachel (ter overname);
โ€ข 17 zonnepanelen, geplaatst in 2015 en 2019;
โ€ข Authentieke details in o.a. metselwerk en vensterluiken;
โ€ข Rookmelders vervangen 2023;
โ€ข Complete levensloopbestendige indeling;
โ€ข Multifunctionele bijgebouw in stijl;
โ€ข Ideaal voor combinatie wonen/werken en/of ruimte-vragende hobby’s!

Lees meer Toon minder

Kenmerken

Bouwvorm

  • Soort woning Vrijstaande woning
  • Bouwjaar 1916
  • Bouwvorm Bestaande bouw

Overdracht

  • Status Beschikbaar
  • Vraagprijs € 700.000,- Kosten koper
  • Aanvaarding In overleg

Indeling

  • Aantal kamers 5
  • Aantal slaapkamers 4
  • Aantal badkamers 1
  • Badkamervoorzieningen Toilet, dubbele wastafel, wastafelmeubel, inloopdouche, vloerverwarming
  • Aantal woonlagen 3 woonlagen

Energie

  • Energielabel C
  • Isolatie Dakisolatie, dubbel glas, voorzetramen
  • Verwarming Cv ketel, vloerverwarming gedeeltelijk, elektrische verwarming, houtkachel
  • Warm water Cv ketel
  • C.v.-ketel type Gas
  • C.v.-ketel eigendom Eigendom

Buitenruimte

  • Hoofdtuin Tuin rondom
  • Achterom Ja
  • Kwaliteit tuin Verzorgd

Parkeergelegenheid

  • Parkeerfaciliteiten Openbaar parkeren, op eigen terrein
  • Garage Vrijstaand steen

Oppervlakte & inhoud

  • Gebruiksoppervlakte 251 m2
  • Perceeloppervlakte 755 m2
  • Gebouwgebonden buitenruimte 33 m2
  • Inhoud 1231 m3
  • Overige inpandige ruimte 81 m2

Dak

  • Soort dak Samengesteld dak

Overig

  • Onderhoud binnen Goed
  • Onderhoud buiten Goed
  • Permanente bewoning Ja
  • Huidige bestemming Woonruimte

Kadastrale gegevens

  • Gemeente Hellendoorn
  • Sectie N
  • Eigendom Volle eigendom
  • Perceelnummer 13778
  • Perceeloppervlakte 755
Bekijk alles Toon minder

In de buurt

      Contact

      Vragen over deze woning?

      Hidde de Vries denkt graag met je mee.
      Bel 06 - 27 45 61 60 of stuur een mailtje naar hiddedevries@piksen.com

      Afspraak maken

      Vul het formulier in om een afspraak te maken

      "*" geeft vereiste velden aan

      Eerste optie

      Tweede optie

      Dit veld is bedoeld voor validatiedoeleinden en moet niet worden gewijzigd.

      Gratis waardebepaling

      Vul het formulier in om contact op te nemen

      "*" geeft vereiste velden aan

      Dit veld is bedoeld voor validatiedoeleinden en moet niet worden gewijzigd.

      Contact opnemen

      Vul het formulier in om contact op te nemen

      "*" geeft vereiste velden aan

      Dit veld is bedoeld voor validatiedoeleinden en moet niet worden gewijzigd.

      De website maakt gebruik van cookies

      Meer informatie over de cookies