Bezichtiging plannen

Vul het formulier in om een bezichtiging te plannen

"*" geeft vereiste velden aan

Eerste optie

Tweede optie

Dit veld is bedoeld voor validatiedoeleinden en moet niet worden gewijzigd.

Oude Elburgerweg 4

8094 PD Hattemerbroek
  • Bouwjaar 2025
  • Energielabel A+++
  • 100 mยฒ
  • 3 kamers

Omschrijving

Op zoek naar een nieuwbouwwoning waar comfortabel en veilig wonen samenkomen? Deze gelijkvloerse GESCHAKELDE 2-ONDER-1-KAPWONING is licht, duurzaam in de breedste zin en bovenal praktisch ingericht, waardoor deze past bij zowel je huidige als toekomstige behoeften! De ligging aan de rand van de dorpen Wezep en Hattemerbroek op minder dan 200 meter afstand van de Veluwe en tรณch nabij alle dagelijkse en niet-dagelijkse voorzieningen is ideaal voor wie houdt van rustig wonen, zonder daarbij volledig afgelegen te zijn.ย 

Levensloopbestendig wonen betekent dat een woning zo is ingericht of aangepast dat je er ook op hogere leeftijd comfortabel en veilig kunt blijven wonen. Een slaapkamer en badkamer op de begane grond is het ideale uitgangspunt voor een toegankelijke ruimte-indeling. Een woning met brede deuropeningen, een drempelvrije toegang en een goed toegankelijke tuin maken het leven makkelijker. Heb je af en toe logees over de vloer of wil je een fijn thuiskantoor inrichten? De halfopen verdieping met entresol is voor uiteenlopend gebruik uitermate geschikt.

(standaard) Indeling*:ย 
Begane grond: Entree, hal met trapopgang, toegang naar inpandige berging met techniek-opstelling en loopdeur naar voortuin, doorloop naar open woonkamer met aansluitend (woon)keuken v.v. glaspui met loopdeur naar achtertuin, aansluitend een slaapkamer welke ook middels schuifdeur vanuit badkamer is te bereiken. In de badkamer is daarnaast op slimme wijze een ruime trapkast met witgoedaansluitingen gepositioneerd. Het toilet is zowel vanuit de badkamer als de hal te bereiken, zodat deze voor eigen gebruik altijd nabij is en voor gasten kan worden afgezonderd van het andere sanitair.ย 

Bijzonderheden:
โ€ข Bouwjaar 2025, ruwbouw casco is gereed en in overleg te bezichtigen;
โ€ข Collectief Particulier Opdrachtgeverschap, eigenaar/verkoper is medebouwer;
โ€ข De gecontracteerde aannemer is Dons en Troost B.V. Staphorst;ย 
โ€ข Woningborg garantie: bouwen met zekerheid;
โ€ข Volledig geรฏsoleerde prefab Hout-Skelet-Bouw met betonvloeren op de begane grond;ย 
โ€ข Woonoppervlakte circa 100 mยฒ, verspreid over twee woonlagen;
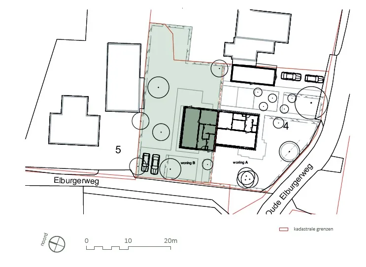
โ€ข Perceeloppervlakte 558 mยฒ (perceel is gesplitst middels Voorlopige Kadastrale Grenzen);
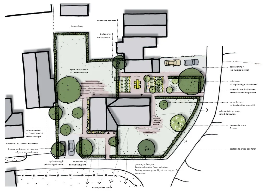
โ€ข Voor de gehele kavel is een inrichtingsplan gemaakt, welke (in grote lijnen) dient te worden uitgevoerd;

*Naar eigen wens zijn – in overleg met de aannemer – nog indelingsvarianten en/of aanpassingen mogelijk, mits dit tijdig wordt besproken.

De vermelde Vrij Op Naam vraagprijs is gebaseerd op zelfbewoning en wordt verdeeld in een koop- en aannemingssom waarbij is inbegrepen:
โ€ข Overdrachtsbelasting over de koopsom van de kavel;
โ€ข BTW over de aannemingssom;
โ€ข Woningborg garantie;ย 
โ€ข Notaris- en kadasterkosten voor de overdracht.

Voor eigen rekening komen aanvullend:ย 
โ€ข Eventuele afsluitkosten voor hypotheek;
โ€ข Hypotheekakte;
โ€ข Keukeninrichting;
โ€ข Sanitair en tegelwerk;
โ€ข Terreininrichting;
โ€ข Aansluitkosten voor nutsvoorzieningen.

De projectnotaris welke de leveringsakte op zal stellen en de overdracht verzorgd is Notariskantoor Riteco in Oldenzaal.

Lees meer Toon minder

Kenmerken

Bouwvorm

  • Soort woning Geschakelde twee onder een kapwoning
  • Bouwjaar 2025
  • Bouwvorm Bestaande bouw

Overdracht

  • Status Beschikbaar
  • Vraagprijs € 607.500,- Vrij op naam
  • Aanvaarding In overleg

Indeling

  • Aantal kamers 3
  • Aantal slaapkamers 2
  • Aantal badkamers 1
  • Aantal woonlagen 2 woonlagen

Energie

  • Energielabel A+++
  • Isolatie Dakisolatie, muurisolatie, vloerisolatie, volledig geisoleerd, driedubbel glas
  • Verwarming Vloerverwarming geheel, warmtepomp
  • Warm water Centrale voorziening

Buitenruimte

  • Hoofdtuin Tuin rondom
  • Achterom Ja
  • Kwaliteit tuin Aan te leggen

Parkeergelegenheid

  • Parkeerfaciliteiten Openbaar parkeren, op eigen terrein
  • Garage Geen garage

Oppervlakte & inhoud

  • Gebruiksoppervlakte 100 m2
  • Perceeloppervlakte 558 m2
  • Inhoud 455 m3

Dak

  • Soort dak Samengesteld dak

Overig

  • Onderhoud binnen Uitstekend
  • Onderhoud buiten Uitstekend
  • Bijzonderheden Toegankelijk voor ouderen, toegankelijk voor minder validen
  • Permanente bewoning Ja
  • Huidige bestemming Woonruimte

Voorzieningen

  • Voorzieningen Tv kabel, glasvezel kabel, zonnepanelen, balansventilatie

Kadastrale gegevens

  • Gemeente Oldebroek
  • Sectie F
  • Eigendom Volle eigendom
  • Perceelnummer 4813
  • Perceeloppervlakte 558
Bekijk alles Toon minder

In de buurt

      € 607.500 v.o.n.

      Contact

      Vragen over deze woning?

      Lisanne Kolthof denkt graag met je mee.
      Bel 0548 - 61 28 61 of stuur een mailtje naar info@piksen.com

      Afspraak maken

      Vul het formulier in om een afspraak te maken

      "*" geeft vereiste velden aan

      Eerste optie

      Tweede optie

      Dit veld is bedoeld voor validatiedoeleinden en moet niet worden gewijzigd.

      Gratis waardebepaling

      Vul het formulier in om contact op te nemen

      "*" geeft vereiste velden aan

      Dit veld is bedoeld voor validatiedoeleinden en moet niet worden gewijzigd.

      Contact opnemen

      Vul het formulier in om contact op te nemen

      "*" geeft vereiste velden aan

      Dit veld is bedoeld voor validatiedoeleinden en moet niet worden gewijzigd.

      De website maakt gebruik van cookies

      Meer informatie over de cookies