Bezichtiging plannen

Vul het formulier in om een bezichtiging te plannen

"*" geeft vereiste velden aan

Eerste optie

Tweede optie

Dit veld is bedoeld voor validatiedoeleinden en moet niet worden gewijzigd.

Ommerweg 67

7447 RB Hellendoorn
  • Bouwjaar 1937
  • Energielabel B
  • 163 mยฒ
  • 7 kamers

Omschrijving

Wonen aan de Ommerweg 67: Waar karakteristieke uitstraling, levensloopbestendig en landelijk wonen elkaar ontmoeten. Deze veelzijdige wonen met uiteenlopende gebruiksmogelijkheden is uniek gelegen aan de rand van het gezellige dorp Hellendoorn met op steenworp afstand van Nationaal Park de Sallandse Heuvelrug, de Hellendoornse Es รฉn het pittoreske dorpscentrum met alle dagelijkse voorzieningen. Gaat jouw hart sneller kloppen van authentieke details als knipvoegen, sierlijke daktrimmen of bijvoorbeeld de consoles met de plantenbak aan de voorgevel? Dan ben je hier aan het juiste adres!

Het woonerf waarborgt door de ligging en indeling volop vrijheid. Het drietal terrassen maken het zeer aangenaam om in de tuin te zitten en te genieten. Aan weerszijden bevinden zich opritten voor meerdere auto’s. De aangelegde en keurig verzorgde tuin is voorzien van een grote garage/hobbyruimte in het souterrain van de uitbouw. Tevens staan achter de woning op het erf een vrijstaande garage/berging, caravan-/camperstalling en een open schuur met dierenverblijf aanwezig.

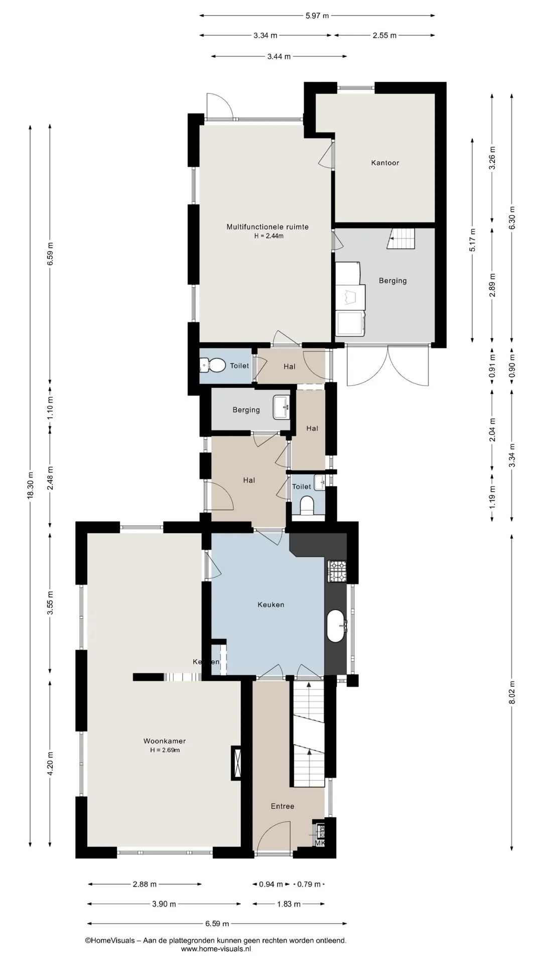
Indeling:
Begane grond: entree, hal, garderobe, bordes-trapopgang, provisiekelder, dichte ruime woon-/eetkeuken met inbouwapparatuur, sfeervolle woonkamer met parketvloer, schouw met houtkachel, achterhal met toilet en fontein, corridor naar de uitgebouwde multifunctionele tuinkamer met terrasdeur naar verhoogd terras, thuiskantoor, berging (voormalige douche en toilet), inpandige berging met witgoedaansluitingen, buitendeur en trapopgang naar verdieping waar zich een slaapkamer en zolderberging bevindt.
Een unieke combinatie van karakter, ruimte en fantastische ligging.

1e verdieping: overloop. slaapkamer (1) met vaste schuifkastenwand en vaste kast, slaapkamer (2) met knieschotten, slaapkamer (3) met vaste kast, badkamer met wastafelmeubel, ligbad, wandtoilet, douche en ingebouwde lamellenkast met radio.

2e verdieping: met vlizotrap naar zolderberging.

Bijzonderheden:
– Oorspronkelijk bouwjaar 1937;
– Uitbouw 1983;
– Woonoppervlakte 163 mยฒ;
– Perceeloppervlakte 758 mยฒ;
– Energielabel B;
– Gescheiden C.V. Ketels in woonhuis en uitbouw;
– Elektra keukenboiler;
– Barbas houtkachel met ventilator;
– Beregeningsinstallatie;
– 15 Zonnepanelen;
– 4 zonneschermen;
– 1 elektrisch bedienbaar terrasscherm;
– Garage/caravanstalling;
– Krachtstroom;
– Grondwater bron en pomp;
– Dierenverblijf/kennels en geรฏsoleerd nachtverblijf;
– Woning geschikt voor meerdere doeleinden.

Kortom buitengewoon wonen,
Landelijk en tegelijkertijd overal dichtbij!

Lees meer Toon minder

Kenmerken

Bouwvorm

  • Soort woning Vrijstaande woning
  • Bouwjaar 1937
  • Bouwvorm Bestaande bouw

Overdracht

  • Status Beschikbaar
  • Vraagprijs € 675.000,- Kosten koper
  • Aanvaarding In overleg

Indeling

  • Aantal kamers 7
  • Aantal slaapkamers 4
  • Aantal badkamers 1
  • Badkamervoorzieningen Ligbad, toilet, douche, wastafel, wastafelmeubel
  • Aantal woonlagen 4 woonlagen

Energie

  • Energielabel B
  • Isolatie Dakisolatie, muurisolatie, dubbel glas, hr glas
  • Verwarming Cv ketel
  • Warm water Cv ketel, elektrische boiler eigendom
  • C.v.-ketel type Gas
  • C.v.-ketel eigendom Eigendom

Buitenruimte

  • Hoofdtuin Tuin rondom
  • Achterom Ja
  • Kwaliteit tuin Fraai aangelegd

Parkeergelegenheid

  • Parkeerfaciliteiten Openbaar parkeren, op eigen terrein
  • Garage Vrijstaand steen, inpandig

Oppervlakte & inhoud

  • Gebruiksoppervlakte 163 m2
  • Perceeloppervlakte 758 m2
  • Inhoud 582 m3
  • Externe bergruimte 78 m2
  • Overige inpandige ruimte 5 m2

Dak

  • Soort dak Zadeldak

Overig

  • Onderhoud binnen Goed
  • Onderhoud buiten Goed
  • Permanente bewoning Ja
  • Huidige bestemming Woonruimte

Voorzieningen

  • Voorzieningen Buitenzonwering, rookkanaal, glasvezel kabel, zonnepanelen, natuurlijke ventilatie

Kadastrale gegevens

  • Gemeente Hellendoorn
  • Sectie H
  • Eigendom Volle eigendom
  • Perceelnummer 10792
  • Perceeloppervlakte 758
Bekijk alles Toon minder

In de buurt

      Contact

      Vragen over deze woning?

      Lisanne Kolthof denkt graag met je mee.
      Bel 0548 - 61 28 61 of stuur een mailtje naar info@piksen.com

      Afspraak maken

      Vul het formulier in om een afspraak te maken

      "*" geeft vereiste velden aan

      Eerste optie

      Tweede optie

      Dit veld is bedoeld voor validatiedoeleinden en moet niet worden gewijzigd.

      Gratis waardebepaling

      Vul het formulier in om contact op te nemen

      "*" geeft vereiste velden aan

      Dit veld is bedoeld voor validatiedoeleinden en moet niet worden gewijzigd.

      Contact opnemen

      Vul het formulier in om contact op te nemen

      "*" geeft vereiste velden aan

      Dit veld is bedoeld voor validatiedoeleinden en moet niet worden gewijzigd.

      De website maakt gebruik van cookies

      Meer informatie over de cookies