Bezichtiging plannen

Vul het formulier in om een bezichtiging te plannen

"*" geeft vereiste velden aan

Eerste optie

Tweede optie

Dit veld is bedoeld voor validatiedoeleinden en moet niet worden gewijzigd.

de Jongstraat 7

8106 AM MariËnheem
  • Bouwjaar 1916
  • Energielabel C
  • 170 m²
  • 7 kamers

Erwin Rouwenhorst zegt

Altijd al landelijk willen wonen..... dan is dit je kans!

Omschrijving

Net buiten de bebouwde kom van Mariënheem zeer centraal in natuurschoonrijke Salland gelegen, met eigen oprijlaan ligt dit mooie erf waarop,

Vrijstaand sfeervolle rietgedekte woonboerderij, voor dubbele bewoning, beide delen met eigen opgang, dubbele royale stenen hobby schuur-, garage-berging, houten kapschuur met hierin 2 paardenstallen met uitloop, opslag fourage, overkapping en ruime parkeergelegenheid. Het geheel is omgeven door mooi aangelegde tuinen en terrassen. Bij het optimaal privacy biedende erf ligt ook circa 2 hectare cultuurgrond welke aanvullend te koop is. Een ideale mogelijkheid voor het houden van paarden of hobby-vee aan huis!

Huisnummer 7:
Indeling:
Begane grond: entree, hal, trapopgang, toilet met fontein, gezellige L-vormige woonkamer, open keuken met inbouwapparatuur, bijkeuken, achterhal, badkamer met douche, 2e toilet en wastafel.

Eerste verdieping: overloop, vaste kastruimte en 2 slaapkamers.

Huisnummer 7 a:
Indeling:
Begane grond: entree, dichte eenvoudige keuken, aansluitend eetkamer met schouw, vaste kastruimte, woonkamer met schouw, tussenhal met trapopgang, slaapkamer en badkamer met toilet, wastafel en douche.

Eerste verdieping: overloop, bergruimte, ruime slaapkamer.

Het geheel biedt de unieke mogelijkheden voor een samengesteld gezin of het runnen van een B&B. De extra bijgelegen grond is ideaal voor de hobbyboer!
De natuur ligt om de hoek en landgoed Schoonheten alsook natura2000 gebied het Boetelerveld ligt op korte afstand.
Wonen en werken vanuit huis wordt dan wel heel aantrekkelijk. Binnen 10 minuten fietsafstand ben je in naastgelegen Raalte met alle voorzieningen, de Hanzesteden Zwolle en Deventer op ca. 20 autominuten.

Kortom een top plekje om te wonen.

Bijzonderheden:
– Oorspronkelijk bouwjaar 1916;
– Renovatie 1994;
– 10 zonnepanelen en omvormer 2025;
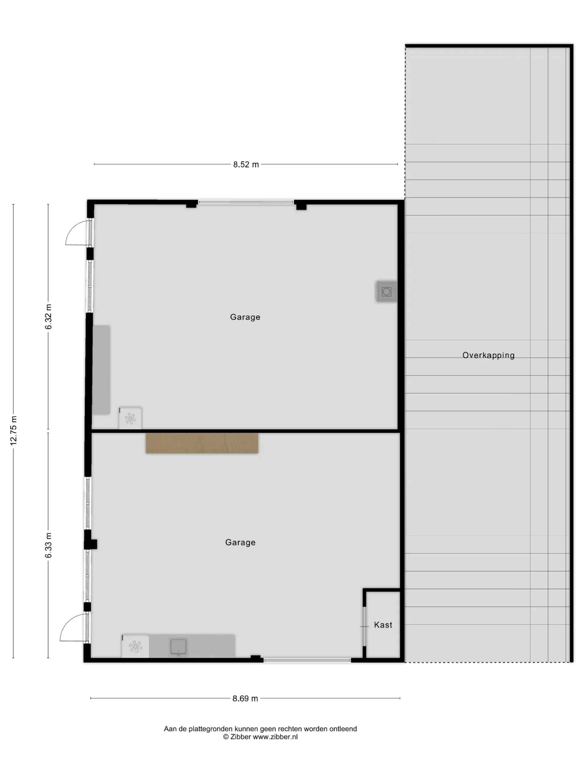
– Dubbele garage/berging t.b.v. no. 7 en 7 a met tweetal roldeuren;
– Krachtstroomaansluiting;
– 2 paardenstallen met uitbreidingsmogelijkheden;
– Grondoppervlakte bij woonboerderij circa 8000 m²;
– Circa 2 hectare aangrenzende extra grond bij te kopen.

Lees meer Toon minder

Kenmerken

Bouwvorm

  • Soort woning Vrijstaande woning
  • Bouwjaar 1916
  • Bouwvorm Bestaande bouw

Overdracht

  • Status Beschikbaar
  • Vraagprijs € 875.000,- Kosten koper
  • Aanvaarding In overleg

Indeling

  • Aantal kamers 7
  • Aantal slaapkamers 4
  • Aantal badkamers 2
  • Badkamervoorzieningen Toilet, douche, wastafel, toilet, douche, wastafel
  • Aantal woonlagen 2 woonlagen

Energie

  • Energielabel C
  • Isolatie Gedeeltelijk dubbel glas
  • Verwarming Cv ketel
  • Warm water Cv ketel
  • C.v.-ketel type Gas
  • C.v.-ketel eigendom Eigendom

Buitenruimte

  • Hoofdtuin Tuin rondom
  • Achterom Ja
  • Kwaliteit tuin Fraai aangelegd

Parkeergelegenheid

  • Parkeerfaciliteiten Op eigen terrein
  • Garage Vrijstaand steen, vrijstaand hout, carport

Oppervlakte & inhoud

  • Gebruiksoppervlakte 170 m2
  • Perceeloppervlakte 8000 m2
  • Inhoud 630 m3
  • Externe bergruimte 145 m2

Dak

  • Soort dak Zadeldak

Overig

  • Onderhoud binnen Goed tot uitstekend
  • Onderhoud buiten Goed tot uitstekend
  • Permanente bewoning Ja
  • Huidige bestemming Woonruimte

Voorzieningen

  • Voorzieningen Zonnepanelen, natuurlijke ventilatie

Kadastrale gegevens

  • Gemeente Raalte
  • Sectie G
  • Eigendom Volle eigendom
  • Perceelnummer 2348
  • Perceeloppervlakte 8000
Bekijk alles Toon minder

In de buurt

      Contact

      Vragen over deze woning?

      Erwin Rouwenhorst denkt graag met je mee.
      Bel 06 51 26 97 31 of stuur een mailtje naar erwinrouwenhorst@piksen.com

      Afspraak maken

      Vul het formulier in om een afspraak te maken

      "*" geeft vereiste velden aan

      Eerste optie

      Tweede optie

      Dit veld is bedoeld voor validatiedoeleinden en moet niet worden gewijzigd.

      Gratis waardebepaling

      Vul het formulier in om contact op te nemen

      "*" geeft vereiste velden aan

      Dit veld is bedoeld voor validatiedoeleinden en moet niet worden gewijzigd.

      Contact opnemen

      Vul het formulier in om contact op te nemen

      "*" geeft vereiste velden aan

      Dit veld is bedoeld voor validatiedoeleinden en moet niet worden gewijzigd.

      De website maakt gebruik van cookies

      Meer informatie over de cookies